
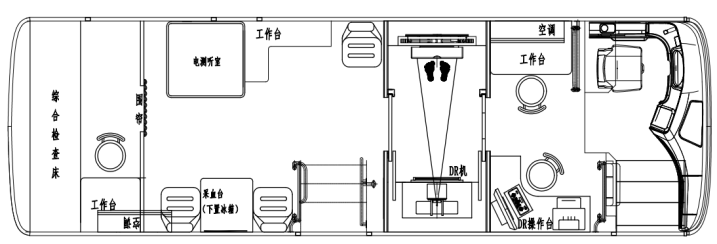
8.2米医疗体检车
车辆外观内饰参考图:






DR主要配置
SONTU100-Akso50-A配置清单
序号 | 配置项目 | 数量 | 备注 |
1 | 摄影机架 | 一套 | 品牌:深图 |
2 | 高压电缆 | 两根 | 品牌:万博 |
3 | 束光器 | 一套 | 品牌:创谷 型号:C30 |
4 | 高压发生器 | 一套 | 品牌:深图 型号:SONTU50-MHG C50 |
5 | 球管 | 一套 | 品牌:佳能 型号:E7252X |
6 | 非晶硅平板探测器 | 一块 | 品牌:深图 型号:SONTU50-4343F-C |
7 | 深图 AI **诊断系统 | 一套 | 品牌:深图 |
8 | 深图虚拟双能减影功能 | 一套 | 品牌:深图 |
9 | 深图云联设备智能管理平台 | 一套 | 品牌:深图 |
10 | 采集处理软件 | 一套 | 品牌:深图 |
11 | 滤线栅 | 一套 | 品牌:JPI |
12 | 电脑及显示器 | 一套 | 品牌:戴尔 |
车辆参数 XML5127XYL16型医疗车
基 本 参 数 | 长(mm) | 8190 | 轴距(mm) | 3960 |
宽(mm) | 2500 | 整备质量(kg) | 9400,10000,10600 | |
高(mm) | 3240,3300,3460 | 总质量(kg) | 11600 | |
载客人数(人) | 2-9 | 排放标准 | 国VI | |
项 目 | 标 准 配 置 | |||
底 盘 配 置 | 发动机 | YCK05230-60 | ||
功率(kw) | 169 | |||
排量(ml) | 5132 | |||
变速箱 | 手动六挡 | |||
行车制动 | 前盘后鼓双回路气压制动 | |||
**制动 | 电涡流缓速器 | |||
ABS | 国产 | |||
悬挂系统 | 8/10,-/- | |||
轮胎 | 9R22.5 | |||
油箱 | 200L | |||
车 身 配 置 | 车身 | 全承载结构,整车阴极电泳,十年防腐。 | ||
座椅 | 丹宁C款座椅 | |||
后视镜 | 电动除霜 | |||
司机椅 | 标准座椅 | |||
行李仓门 | 上掀式铝合金 | |||
天窗 | 一个,带换气扇 | |||
乘客门 | 前铝合金气动外摆门,带遥控锁 | |||
电 器 配 置 | 空调 | 非**式顶置空调 | ||
暖风 | 前除霜器 | |||
视听系统 | MP3播放器 | |||
电子钟 | 有 | |||
电喇叭 | 有 | |||
行车记录仪 | 带GPS功能、平台管理 | |||
改装配置
1、 | 市电配电系统 | 继电器、电源总开关、自动保护开关等 | 1套 | 备注 |
2 | 市电灯具、插座、 开关 | 共6只LED内顶灯一个开关**,布置方式:每个工作台上方1只、铅房内2只、测听室内1只;10个插座及开关布置在用电器附近及工作台附近 | 1套 | |
3 | 逆变充电一体机 | 1kW(国内品牌) | 1台 | |
4 | 车内照明系统 | 长条日光灯 | 2组 | |
5 | 车内紫外线杀菌灯 | 带定时功能 | 4组 | |
6 | 影像工作站 | 木工板制作 台面防水板 | 1套 | |
7 | 工作台 | 木工板制作 台面防水板 | 3套 | |
8 | 折叠座椅 | 大巴折叠座椅 | 3套 | |
9 | B超心电检查床 | 海绵皮革床 | 1套 | |
10 | 圆凳 | 3套 | ||
11 | 壁挂空调 | 格力壁挂空调1.5P | 2套 | |
12 | X光机铅房 | 铅板关键部位选用4mm厚铅板防护(自动推拉门) 要求有观察窗可查看铅房内情况。 | 1组 | 提供车载机房放射防护检测报告. |
13 | 观察窗铅玻璃 | 450mm*600mm铅玻璃 | 1组 | |
14 | 光机室内监控装置 | 在X光机室内部 | 1组 | |
15 | 工作信号灯 | 红光显示 | 1个 | |
16 | 体检区域隔断帘 | 滑轨+折叠布帘 | 1组 | |
17 | 测听室 | 测听室(型材+隔音棉) | 1组 | 提供听力室检测报告 |
18 | 接线盘 | 30米 移动链接线 | 1组 |
X射线防护水平符合国标GBZ130-2020;

示范案例(照片仅供参考)





(1)汽车底盘和配套泵的维护保养按相应的使用说明书进行。
(2)车辆使用前应按汽车使用说明书的要求进行磨合。
(3)润滑系统保养:车辆每行驶5000km-10000km时就需清洗保养一次,在遇到发动机噪音过大,加速无力或水温过高时也需清洗保养一次。清洗发动机内部的油泥和其它积物,这样可以避免机油高温下的氧化稠化,能有效的减少发动机部件的磨损,从而延长发动机寿命,提高发动机动力。
(4)冷却系统保养:车辆在冬夏换季时应清洗保养一次,希望您正常行驶中每6个月至8个月清洗保养一次,或者遇水温过高、漏水、开锅时清洗保养一次。清除导致发动机过热的痕迹和水垢,防止有害的腐蚀发生,避免并制止密封件和水箱的渗漏,彻底更换旧的冷却液。
(5)燃油系统保养:车辆每行驶800km-1000km时需清洗保养1次,或当你发觉引擎喘抖,迟滞和加速不良,冒黑烟,无力、费油时清洗保养1次。要清除系统内部的胶质和积碳,防止有害的腐蚀发生,避免并制止密封件和水箱的渗漏,彻底更换旧的冷却液。
(6)变速箱保养:车辆每行驶800km-1000km时清洗保养一次,或遇变速箱打滑、水温偏高、换挡迟缓、系统渗漏时清洗保养一次。清除有害的油泥和漆膜沉积物,恢复密封垫和O型圈的弹性,使变速箱换档平顺,提高动力输出,彻底更换旧的自动变速箱油。
(7)动力转向系统保养:车辆每行驶1000km-2000km清洗需保养一次,或遇转向困难系统渗漏,更换动力转向机配件后,也须清洗保养一次。清除系统中有害的油泥、漆膜,清除低温时的转向困难,制止并预防动力转向液的渗漏,清除转向噪音,彻底更换旧的制动转向液。
(8)制动系统保养:车辆每行驶800km清洗保养一次,或遇ABS反应过早,过慢时清洗保养一次。清除系统中有害的油泥漆膜,清除超高温或超低温时工作失灵的危险,有效防止制动液变质过期,彻底更换旧的制动液。
(1)免费维修方案以及期限? 1、跟踪服务时间:终身; 2、在交客户使用之日起,在正常使用范围内,行驶10000公里内或一年内免费修理(不包括易损件和电器部分),超过一年,只收取零件费; 3、服务到达时间:省内,二十四小时内到达;其它地区,二十四小时内派出人员; 4、每年防汛期间按排工程技术人员定期或不定期走访做到有故障及时排除,无故障积极预防。
(2)免费后期配件供应价格方式? 1、方式:在所在地技术服务站统一供货,根据用户要求由厂方直接发货; 2、配件只收工本费,不加其他费用。
(3)售后服务方式? 底盘部分的维修可在用户使用地就近的服务站解决。分布地点、技术力量、联系方式,详见底盘《保养手册》。 专用装置部分的维修,可采用电话、传真的联系方式,供货方在接到用户电话后24-28小时派专业维修人员前往使用地解决。
(4)技术培训方案? 供货方负责在交车给用户使用前,在用户所在地免费培训设备使用人员,主要从驾驶员如何操作液压系统及专用装置方面进行熟悉该类车的基本原理和处理一般故障能力的培训。
(5)我们是外地的,能不能送车? 购车流程规定客户可以在网上订购,签订购车合同。预付定金。在规定时间内送车到客户指定地点,客户验车合格付全款。
(6)到厂自提车时间? 自提时间:周一至周日,08:00 - 19:00(部分自提点工作时间为9:00-18:00,如遇国家法定节假日,则以新闻发布放假时间为准,请大家届时关注)
(7)我们这里有没有销售点?想看车怎么办? 专用车不同于小轿车之类的在全国各地设立销售公司4S店,这是由专用车的特殊性决定的。利用现在发达的商务网络,客户只要来电来函下订单,按照购车流程进行购车,会在合同规定的时间范围内将车辆及车辆完整手续交到客户手上。我们将根据用户的实际需求,为每位用户打造高品质、个性化的专用车,欢迎您来实地考察生产实力及产品工艺,我们会为您提供优质的服务!